über uns
Das Fahrzeug
Reiseroute aktuell
Tagebuch
Fotogalerie
Links
MAN
Technische Daten
Impressionen
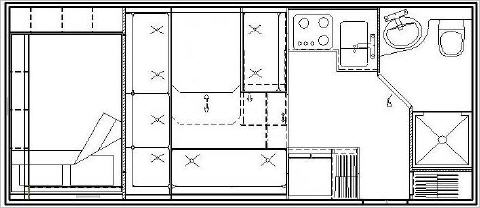
Innenaufteilung
Startseite
Innenaufteilung